2026/04/10NEW
暗い・狭いを、明るく・広く。
まちなかの暮らしは買物に便利、
通勤・通学にも便利なのですが、
その反面、隣家と接近していて暗さ ...

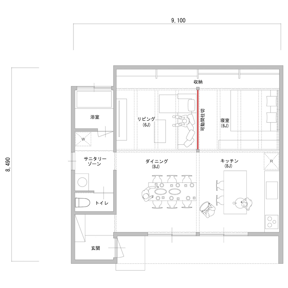
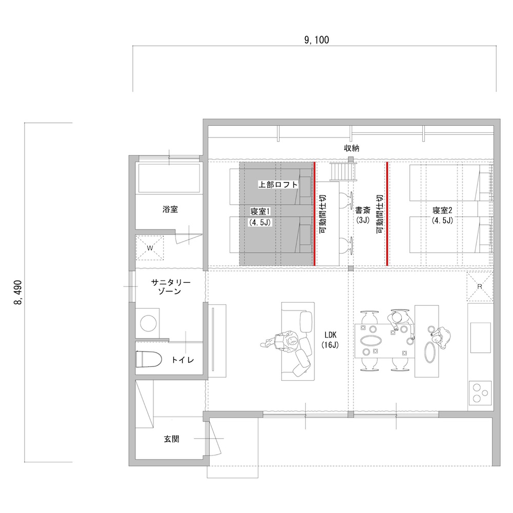
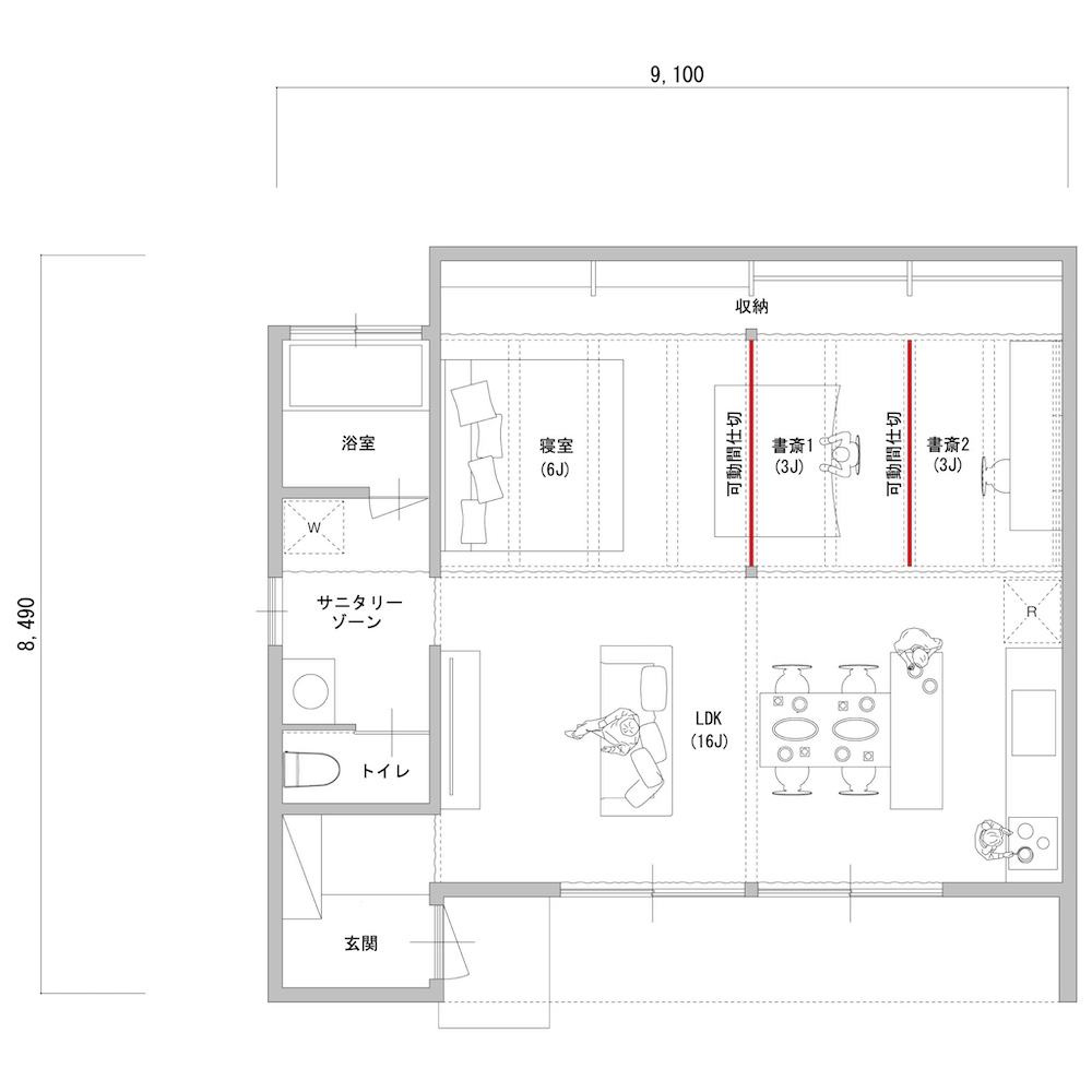
スケルトン・インフィルという建築手法があります。
スケルトンとは構造躯体のこと。
インフィルとは間仕切り・設備・内装などのこと。
一般住宅ではスケルトンとインフィルは一体化していますが
この方法では二者を分けて設計・施工しますから、
柔軟に間取りが変更できます。
つまりライフスタイルに合わせた思い通りの間取りが可能であり、
ライフステージの変化に合わせて間取りを変えることもできます。
このプランはスケルトン・インフィルの考えに近く、
ご家族の今と将来にやわらかく寄り添う住まいといえます。
みずしまの「コンセプト住宅スゴプラ」は建売りではありません。
あなたの土地に、あなたの希望する住まいをお届けします。
希望する暮らし方に合わせて選べる全18タイプ。
あなたならどれをチョイス?




