みずしまの家 水嶋建設株式会社

「みずしまの家」を愛するスタッフの日常

社長のブログ

これだけ!2012年9月30日日曜日

こんにちは、

先日構造見学会をさせていただいたお宅の、

図板(手板)です。

2012-09-23 14.49.45.jpg

要するに棟梁が刻みのために自分で書く大工さんの設計図です。

これだけなんです。

2012-09-23 14.50.02.jpg

よく見ると、計算もされていますが、棟梁にしかわからないかも・・

昔の職人さんは仕事は盗んで覚えろ!とよく言われたそうです。

多分親方から、こういったことも横目で盗むように覚えたんでしょうね。

なので、それぞれ書き方が微妙に違います。

でもご覧いただいたお客様はお分かりになると思いますが、

丸太同士も柱もピッタリ収まっていました。

 

この技術を後世に伝え、残していかなければ罪ですね。

 

というわけで、

今後も弊社ではプレカットのみではなく、手刻みも行なってまいります。

完成してしまえば、見えないんですけど・・・・

きっと遠い将来、お客様の何代か後に、

気づいていただける日が来るかもしれませんね。

楽しみです。

 

それではまた。

工事部のブログ

Y様邸足場解体完了2012年9月28日金曜日

P9270236.JPG

足場の解体が終わり、建物の外観がよく見えるようになりました。お客様のイメージに近い感じに仕上りました。

2階部分の板金は濃いブルー色なんですが、夕日の関係で少し色が分かりにくいですね。

これから外部の給排水や左官の仕上げを行っていきます。

内部も大工さんの造作完了が近く、仕上げ工事を徐々に進めていきます。

建築デザイナーのブログ

ベビーベビーベビー★2012年9月27日木曜日

こんにちは。天気がいい日が続きますが台風が心配ですね。。。

 

さて、今週の月曜日9月24日に水嶋建設内スタジオにて『赤ちゃんとベビーサインで語りましょう』、

『赤ちゃんとベビーダンス』を開催しました。

 

ベビーがたくさんで、癒しの時間をいただきました。

両方参加してくださった方もいて、長時間ありがとうございました。

特にぐずる赤ちゃんもおらず、素晴らしいですね。

 

『ベビーサイン』はこんな感じです~♪

IMG_0537.JPG

 

IMG_0541.JPG

 

IMG_0548.JPG

ベビーサインとは、まだ言葉を上手く話せない赤ちゃんと、手話やジェスチャーを使ってコミュニケーションする育児法です。

絵や、先生のお子様が実際ベビーサインを出している写真を使ってベビーサインを紹介してくれました。

また、赤ちゃんとふれあい遊びをしながら、歌をうたいながら、ベビーサインを取り入れて教えてもらいました。

 

『ベビーダンス』はこんな感じです~♪

IMG_0558.JPG

 

IMG_0563.JPG

 

IMG_0566.JPG

ベビーダンスって「ベビーが踊るの?」と思うのですが、ママが踊るんですよ!

赤ちゃんを抱っこしてみんなで一緒に踊ろう!というのがベビーダンスです。

育児のストレス解消・運動不足解消にもいいですよ。

サンバのリズムに合わせて踊るのですが、踊るというよりストレッチに近いかもしれません。

有酸素運動産で、産後の骨盤矯正にも効くそうです。

簡単な動きなのですが、みんな汗を結構かいてました。

ママに抱かれ、リズムに合わせた揺れを感じるベビーはみんなスヤスヤ眠りの中へ。

ほぼみんな寝てましたね。

 

サンバのリズムなんて普段聞かないかと思いますが、先生は「スーパーで流れる音楽がベビーダンスのリズムにちょうどいいですよ~」と紹介してました。

そうやって普段の動きにベビーダンスを取り入れていけると、イベントに来ていただいて体験した事が役立てていただけると思います。

 

 

今回の先生はいずれも服部ひろみ先生です。

ベビーサインもダンスも講師ができるなんて素敵ですね☆

ベビーサインは体験会だったので、今後ベビーサインを本格的に教えて欲しいという方には先生の自宅教室の紹介します。

http://babysigns.nomaki.jp/

ベビーダンスはスカイホールにて教室を開催しているそうです。こちらは予約がすぐ満員になるそうです。

 

そしてそして私が気になったのは先生の持っていた布!!!

ベビーダンスの時に、先生がお人形の赤ちゃんを抱いている布がわかりますか?

DIDYMOSという一枚の布で赤ちゃんを包むように巻くベビーラップというものだそうです。

先生はこちらの代理店もされてるそうで、こちらも自宅で毎週月曜日に体験会をしているそうです。

ホームページをご覧ください。ブログに詳しく載っています。

 

本当に多才な先生ですね☆

実は輪崎の中学の同級生です。みなさんよろしくお願いします~

 

 

今回は1度限りのベビーのイベントでしたが、水嶋建設スタジオでは、1か月の赤ちゃんからを対象にした

『ベビーとふれあいあそび』を毎月開催しております。

こちらは豊田の子育て支援団体mama’s smaileとのコラボ企画です。

次回は10月12日(金)AM10:00~11:00に開催します。

すぐに大きくなってしまう赤ちゃん。

また来月あったら参加してみようかな~なんて考えている間に本当にすぐ成長してしまいますので、

興味がある方は早めのお越しをお待ちしております。

詳細についてのお問い合わせ、お申込みはフリーダイヤル0120-28-1890までよろしくお願いします。

 

皆様のまたのご参加お待ちしております。

工事部のブログ

大盛況!ありがとうございました!!2012年9月25日火曜日

先週末の9月22日(土)に豊田市保見町『K様邸構造見学会』を開催しました。

来ていただいたお客様にゆっくり見ていただきたいのと、駐車場の関係もあり、

先着5組様の限定で広告を出したのですが。。。

なんと予約だけで9組のお客様からお電話をいただき、

なんとか調整してご来場していただける事になりました。

 

しかししかし!当日、現在水嶋建設でお打ち合わせ中のお客様が急きょ2組様、

さらにご近所の方も見に来ていただき、

合計12組のお客様にご来場いただきました!

ありがとうございました!!

 

完成した物件は何度でもご案内できますが、完成したら絶対に見られない構造見学は完成見学会よりも断然の人気ですね。

 P9220013-1.JPG

 

P9220017-1.JPG

 

特に、今お打合わせをさせていただいているお客様から

『我が家もこんな感じになるんですか?』と質問をいただきます。

 どんな物件でもそうですが、まずはお客様の土地に合った間取りを考えて、キッチンなどの水廻りの話をして・・・という流れで、

間取りが決まってやっと「構造材にはヒノキ材を使います」「大黒柱は7寸です」なんて説明させていただくのですが、

だいたいのお客様は構造材がどんなものかなかなかイメージできず、お客様の反応は「へぇ~」くらいなのです。

 

でも、実際の構造を見ていただいて、お客様の中でも「じゃぁ我が家の構造はどうなるの?!」と思うようです。

『百聞は一見にしかず』まさにこの言葉の通りですね。

間取りももちろん大事ですが、家の基本である構造は何よりも大事な部分だと思います。

 

平面的な図面を見ているだけの時よりもイメージが膨らむようで、結構みなさん興奮しながら見て行かれていました。

 

 P9220020-1.JPG

 紅白幕が巻かれているのが大黒柱です。

7寸(21cm)の国産ヒノキです。

 

今回、断熱材であるセルロースファイバーの施工が見学会では見ていただけなかったので、

ご希望の方にはセルロースファイバーを施工後の様子が分かる頃にもご案内させていただきます。

お問い合わせフォームhttp://www.mizushimanoie.jp/contact/

またはフリーダイヤル0120-28-1890より『K様邸、セルロースファイバーの施工の様子が見たいです』とご連絡だくさい。

 

他にもご希望がありましたら先日開催いたしました『浄水町 M様邸』など

すでに住んでいるお客様のお宅にもご案内をさせていただきます。

お問い合わせください。

社長のブログ

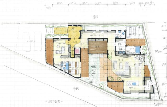
力作!2012年9月25日火曜日

こんにちは、

今日はプランのお話です。

 

初期のプランニングはほとんど私が手書きします。

プランニングの流れは大まかに、

敷地調査~ヒヤリング~ゾーンニング

~ラフプラン(数回)~CAD図面・パース・概算お見積もり

となります。

 

この流れの中で一番エネルギーと時間を必要とするのが、

ラフプランです。

ですので、ここまでは私が関わらせて頂きます。

 

今回は今まででも、特に大型の物件を紹介します。

img-925081118-0001.jpg

東側プランです。

img-925081106-0001.jpg

南側プランです。

img-925081026-0001.jpg

1階プランです。

img-925081037-0001.jpg

2階プランです。

img-925081053-0001.jpg

3階プランです。

100坪を超える御宅です。

落書きみたいですか?

自分では結構力作だと思ってます。

このあと何回も何回もプランニングとお打ち合わせを重ね、

現在はCAD図面になりました。

完成が楽しみです。

ではまた。

 

 

 

工事部のブログ

生活感満載!2012年9月18日火曜日

こんにちは、

先週の土曜日、M様邸の見学会を開催しました。

 

実際に住んでいるので、生活感満載です。

P1010574.JPG

完成見学会の時のディスプレイとは随分変わりました。

 

P9150071.JPG

こちらのお客様は、

北側のアールの外壁に興味を持たれてお見えでした。

実はこの壁がアールになったのは、道路の角切りの為なんです。

この地区は外壁後退ラインがあるので、

境界から1m以上離さなくてはなりません。

外壁も角切りでも良かったのですが、

大工さんの技術でアールになりました。

当然、内部の壁もアールです。

その屋根瓦はカットせずに割付で収めていますので、

下地はとても複雑です。

 

ご連絡いただければ、日程調整の上ご案内いたします。

http://www.mizushimanoie.jp/contact/

こちらからどうぞ。

 

 

 

 

 

 

 

 

工事部のブログ

Y様邸、足場解体まであと少し2012年9月15日土曜日

P9140063.JPG

2階部分の板金が進んできました。

写真では分かりにくいかもしれませんが、濃ブルーです。

まだ、角コーナーや樋が取り付いてませんので、足場の解体までもう少しかかります。

早くすっきりした外観をお見せしたいですね。

建築デザイナーのブログ

子連れでエアロビクス2012年9月14日金曜日

 

 

こんにちは。

昨日の9月13日(木)水嶋建設内スタジオにて『エアロビクス&パワーヨガ』を開催しました!

まだまだ暑い中、みなさんご参加ありがとうございました!

先週の新聞折り込み広告を見て来場された方、ありがとうございました!

 

昨日は子供連れの方も多く、みんな抱っこしたりしてエアロビクスを楽しんでいました。

IMG_0527.JPG

エアロビクスの講師の山内先生も、いつもお子様を抱っこして頑張ってます。

 

先日『ボクササイズ&ピラティス』のご報告の時に、ヨガとピラティスの違いを書かせてもらったのですが、

ピラティスは動きはゆっくりですが、インナーマッスルを鍛えるのを目的とし、

ヨガは呼吸法やポーズでリラックス効果を目的としているそうです。

エアロビクスのときは、リズミカルで激しめな音楽ですが、ヨガの時はゆったりとした音楽です。

 

といっても、パワーヨガなので、筋肉も使いますよ!

IMG_0531.JPG

こちらは自分の体のバランスを確かめるポーズだそうです。

簡単に見えますが、調子が悪いと安定しないそうです。

 

ヨガに大事な腹式呼吸。しっかり吸って吐く事でリラックス効果があります。

IMG_0530.JPG

育児等でイライラする事があったら、トイレにでもこもってゆったりとした深呼吸をする事で

リラックスできてイライラもおさまるそうですよ!

イライラした時は試してみてください!

 

マタニティヨガもされてる先生なので、骨盤まわりの筋肉を意識する動きが多いので産後ママにお勧めのポーズがいっぱいです。

もちろん、マタニティの方でも安定期に入って問題がなければ参加いただけます!

動きに多少制限はありますが、先生が指導してくださるので安心して参加してください。

 

先ほども書きましたが、子供連れのお客さまばかりで、先生も子供さんを抱っこしながらなので、

お子様連れでも安心して来場してください。

みんなこんな感じです~☆

IMG_0534.JPG

 

次回のお知らせです。

10月18日(木)AM10:00~11:00、水嶋建設内スタジオにて開催します。

参加費は500円、持ち物は室内シューズとヨガマットまたはバスタオルです。

お子様連れの方はおもちゃやお菓子をお忘れなく!

 

お申し込みはフリーダイヤル0120-28-1890までお願いします。

皆様のご参加をお待ちしております!

社長のブログ

再生!2012年9月13日木曜日

こんにちは、

先週の日曜日、心配した天気も晴天となり、

K様邸の上棟をさせていただきました。

2012-09-09 17.26.58.jpg

建替えのお宅で、旧家でしたので古くても立派な材料が使用されていました。

2012-09-09 16.27.15.jpg

これは屋根の小屋組です。

中桁・胴梁(どちらも丸太組)の交差しているところの小屋束に、

旧家の古材の中から、桧の柱をひとまわり削って再生しました。

 

ご先祖様が毎日眺めていた座敷の柱です。

ここに幣束と御札を収めさせていただきます。

 

他に、松材の立派な鴨居なども板材やカウンターなどに、

加工して、再利用させていただこうと考えています。

2012-09-09 16.30.49.jpg

 

実際、解体時に手作業で材料を取り外し、

木材を再利用するのは、手間を考えると割高かもしれません。

でも、もったいない!

以前の旧家の名残を何か残したい!

お客様にご理解をいただき残すことができます。

 

このお宅で、22日(土)に構造見学会をさせていただきます。

 

 

建築デザイナーのブログ

歌に合わせてふれあいあそび☆2012年9月11日火曜日

こんにちは。

今日の朝方、雷がすごかったですね!

昨日はあんなに天気がよかったのに、今日は雨でじめじめですね。

 

さて、先週の木曜日ですが、水嶋建設内スタジオにて『ベビーとふれあいあそび』を開催しました!

最近連続で来てくださるお客様がいて、最初出会った時は赤ちゃんの首がしっかりしてなかったのに、

この前会ったらもうはいはいしてました!!!すごーい!

どんどん成長していく赤ちゃんにほっこりしてしまいますね。

 

月に1回の開催ですが、先生にも毎月毎月「もう1カ月経ったんですね!」ってついつい言ってしまうんですよね。

1か月は早いですね。

 

今回もふれあいあそびをたくさんしました。

大きな栗の木の下でやむすんでひらいてなどなど、赤ちゃんも喜ぶ曲に合わせてたくさんふれあいます。

IMG_0502.JPG

 

IMG_0504.JPG

 

先生のお子さんは1歳5ヶ月なんですが、もう歌が始まるとちゃんとわかっていて、手を叩いたり自分の体を触ったりしてました。

きっと毎日先生がお子さんに歌ってあげてるんでしょうね。

 

IMG_0505.JPG

 

ママのストレッチも兼ねてぶーん♪

赤ちゃんをわざと不安定な場所に置くと、赤ちゃんのバランス感覚が育つんだそうですよ!

 

IMG_0509.JPG

 

IMG_0508.JPG

たまたまカメラ目線~♪♪かわいいですね。

 

今回の絵本は、豊田市の赤ちゃんなら誰でも持っている『いないいないばぁ』です。

4か月検診でもらえるんですよ!

IMG_0511.JPG

ベビーサインを取り入れて読んでくれました。

 

そうそう、赤ちゃんをおむつだけでマッサージができるのももう少しですね。

まだまだ温かいですが、きっと来月にはエアコンもいらないでしょうね。

先日かかりつけの病院で『インフルエンザの予防接種を開始します』って案内があったのですが、

寒い時期には風邪等に気をつけないといけないので、ママは大変な時期になりますね。。。

 

赤ちゃんの手足をママが動かすだけで、赤ちゃんにはとても運動する事になるそうです。

もちろん、ママとたくさんふれあう事で安心感も得られるので一石二鳥ですね!

 

さて、来月のご案内です。

10月12日(金)AM10:00~11:00

水嶋建設内スタジオにて(豊田市伊保町西浦30)

参加費500円

持ち物はバスタオル、赤ちゃんとママの水分補給できる飲み物をお持ちください。

 

最近小さい子がいないのですが、3か月未満でも全然大丈夫ですので、ご参加お待ちしております!

少人数ですので、先生が月齢に合わせてアドバイスをくれますよ。

寒い時期に向けて、赤ちゃんの丈夫な体つくりを一緒にしましょう!

皆様のご参加をお待ちしております!

工事部のブログ

作ってみました2012年9月 8日土曜日

P9080021.JPG

これはそとん壁の色見本です。

お客様との打ち合わせ用に作ってみました。

現場で左官屋さんが塗っているところをみると簡単そうですが・・・

素人には難しいですね。

色は白色と灰色っぽい色です。塗ったばかりなので、まだ色が濃い感じがしますね。

乾くとどんな色合いになるか楽しみです。

社長のブログ

出発!2012年9月 7日金曜日

こんにちは、

明後日の上棟に向けて、

棟梁によって刻み加工の終わった材料が、

出発です。

2012-09-05 09.06.57.jpg

構造梁です。

2012-09-05 09.07.43.jpg

通し柱です。

一番上の紅白が7寸の大黒柱です。

2012-09-05 09.08.57.jpg

全て4寸角の桧柱です。

2012-09-05 09.09.20.jpg

桧の垂木です。(屋根の下地)

全て現場へ運んで、地組を行い上棟をむかえます。

 

久しぶりに、工場がガランとしました。

片付けや掃除がしやすくなりましたが、

なんとなく我が子が旅立ったみたいな嬉しくて淋しい気持ちです。

みんな元気でね!

なんて、大げさでしょうか。

 

それではまた。

工事部のブログ

Y様の家、順調に施工中!2012年9月 5日水曜日

現在下の部分の外壁が終わり、これから上の部分の外壁にとりかかります。

こちらのお宅では、下の部分をサイディング。上の部分を板金で仕上げます。

ベランダ部分は木っぽいサイディングにして少しインパクトをつけています。

内部は床が貼れて、壁のボード貼りに取り掛かります。

また、外壁の進捗状況をご報告させていただきます。

P9030011.JPG

社長のブログ

上棟に向けて。2012年9月 4日火曜日

こんにちは、

週末の上棟現場の確認に行ってきました。

基礎はきれいに仕上がり、養生もできました。

大工さんが、上棟に向けて基礎に墨付けを行います。

明日土台を敷き、地組みに取り掛かります。

コンクリートの強度試験も予定しています。

2012-09-04 16.18.12.jpg

この大工さんが棟梁として、墨付けから刻みまで行いました。

7寸の大黒柱はともかく、丸太の梁、手刻みの仕口は完成すると、

ほとんど隠れてしまいます。

ちょっと残念な気もしますね。

ではまた。

建築デザイナーのブログ

インナーマッスルを鍛えましょう!2012年9月 4日火曜日

こんにちは。

今日の天気は不安定でしたね。

朝、雨が降ってきたので傘を持ってきたのですが、今は傘なんて全くいらないような快晴ですね☆

 

今日は『ボクササイズ&ピラティス』を水嶋建設内スタジオにて開催しました。

9月初めだからか。。。キャンセルが続いてしまって、今日は3名の方の参加でした。

皆様ご来場ありがとうございました!

 

もう御馴染のボクササイズですね。

今日は特にピラティスで気になるお話を先生からいただいたので、ピラティスについて書いてみようと思います。

実際、ピラティスって何?って聞かれたらはっきり答えられなかったので、ちょっと調べてみました。

ピラティスというと、気になるのが『ヨガ』との違いですよね。

ヨガはリラックスを目的にしているのに対し、ピラティスはインナーマッスルを鍛えるエクササイズなんだそうです。

体幹(コア)部を強化する事で持久力がつくそうです。

特に違うのが呼吸法だそうで、ヨガは腹式呼吸、ピラティスは胸式呼吸です。

先生が言っていましたが、腹筋や骨盤廻りなど、体の真ん中をしっかり支える事で体全体が安定するそうです。

 

私もやってみたのですが、腹筋に力を入れたまま呼吸するのって結構大変ですよ!

女性の方なら骨盤って大事だなってみんな思うと思いますが、本当に骨盤廻りをしっかり鍛えると姿勢もよくなり、

身体のゆがみが減り、肩こりなども解消されるそうです!

先生はぜひ、日常の中でも骨盤を意識して欲しいと言っていました。

 IMG_0491.JPG

 

IMG_0492.JPG

見ているだけなら簡単そうなんですけどね~結構胸式呼吸って意識すると難しいですよ。

 

 さて、先生から新しい提案をいただきました!その名も『Zumba(ズンバ)』です!

Zumba(ズンバ)とは、いろいろなフィットネスやトレーニングを混ぜ合わせてあるそうです。

音楽がラテン系でとても楽しいのに、しっかり身体を動かすトレーニングになっているので、

『楽しみながら運動ができるから続けられる!』そうです。ってどこかの通販の宣伝みたいですが。。。

ボクササイズの講師をしてくださってる、塩見先生が新しくインストラクターの資格を取ったそうで、

ぜひ水嶋建設のイベントでやってみたいとお話をいただきました。

新しいエクササイズを豊田市で体験できるなんて楽しみですね!

ちょっと先になりますが、11月には『Zumba』を開催する予定のでお楽しみに!

 

さて、先ほどもチラシの話を出しましたが、

明後日の9月6日(木)、中日新聞朝刊で9月に開催される見学会の案内チラシが折込みに入ります。

今回はこんな感じです~

 IMG_0497.JPG

写真だと黄色いですが、オレンジ色です。みなさんチェックしてくださいね!

 

こちらは今日から期間限定でスタジオに登場したサーバーです。

お中元でいただいた、電気のいらないエコサーバーです。

でも電気がないので冷たくないんですよね。。。う~ん。。。

 IMG_0496.JPG

みなさん自由にお水飲んでくださいね。

 

では、10月の『ボクササイズ&ピラティス』の案内です♪

10月9日(火)AM10:00~11:00水嶋建設内スタジオにて

体験価格500円、持ち物は室内シューズとヨガマットまたはバスタオルです。

先着15名様の予約制です。ご予約はフリーダイヤル0120-28-1890までお願いします。

IMG_0500.JPG

今月の他のイベント情報はこちらです。

http://www.mizushimanoie.jp/event/2012/08/9.html

来週のエアロビクスもまだまだ空いてますので、お申込みお待ちしております!!!

工事部のブログ

改修後2012年9月 3日月曜日

あるお宅でトイレのリフォームを行いました。

設備の撤去、床、壁の解体を行い

新たに新設しました。

CIMG873300.JPG

改修後は換気扇も取付、開き戸を引き込み戸に変更しました。

今までより少し広く使いやすくなった感じがします。

P9010074.JPG

プロフィール

自然素材に拘り続けて半世紀。
ご希望やご予算に合わせて、住まう人の個性に満ちた心地よい空間をご提供する水嶋建設スタッフのブログ。

最近のブログ記事

月別アーカイブ

カテゴリ

2018年5月

S M T W T F S
    1 2 3 4 5
6 7 8 9 10 11 12
13 14 15 16 17 18 19
20 21 22 23 24 25 26
27 28 29 30 31    
ページトップへ ▲